ヴェルビュ新屋敷東

熊本市 不動産ヴェルビュ新屋敷東

ヴェルビュ新屋敷東の売却査定・買取査定は株式会社たたら不動産

〔物件ID〕 0000014256
  • 中古マンション
  • 値下げ
1,980 万円
所在地 熊本県熊本市中央区大江1丁目
交通 熊本市電健軍線「九品寺交差点」駅 徒歩18分
バス 大江川鶴バス停下車 徒歩4分
熊本電鉄「藤崎宮前」駅徒歩19分
専有面積 83.76m2 (25.33坪)
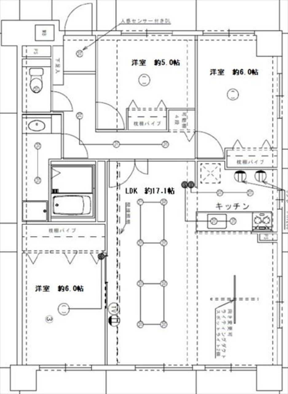
間取り 3LDK
築年月 1996年02月(平成8年02月)
所在階/階数 2 階 / 6 階
  • おすすめ物件
  • 注目の物件
  • 南向き
  • 新耐震基準
  • 角住戸
  • 駐車場空きあり
  • リノベーション・リフォーム済み
  • オートロック
  • 即入居可
ヴェルビュ新屋敷東の物件写真

間取り図

  • 外観

  • 間取り図

  • 玄関

  • リビング

  • リビング

  • リビング

  • キッチン

  • 流し台

  • 食洗機

  • 三口コンロ

  • 洋室

  • 洋室収納

  • 洋室

  • 洋室

  • 洗面所

  • 浴室

  • トイレ

  • バルコニー

  • 正面玄関

  • エントランスインターホン

  • ロビー

  • 駐輪場

  • 駐車場

  • ゴミステーション

  • 前面道路

  • 大江小学校

  • 白川中学校

  • ローソン熊本新屋敷3丁目店

  • 熊本新屋敷郵便局

  • ゆめマート大江

ヴェルビュ新屋敷東のMAP・周辺環境
ヴェルビュ新屋敷東の物件概要
所在地 熊本県熊本市中央区大江1丁目
交通 熊本市電健軍線「九品寺交差点」駅 徒歩18分
バス 大江川鶴バス停下車 徒歩4分
熊本電鉄「藤崎宮前」駅徒歩19分
価格 1,980万円
小学校区大江小学校 (距離 740 m)中学校区白川中学校 (距離 640 m)
専有面積 83.76m2(25.33坪) 間取り 3LDK
バルコニー面積 17.58m2 バルコニー向き
その他面積 ---
構造 RC 所在階/階建 2階/6階
築年月 1996年02月(平成8年02月) 総戸数 14戸
土地権利 所有権 用途地域 一住
管理会社 大和ライフネクスト
管理形態 管理会社に全部委託 管理員 日勤
管理費 19,000円 修繕積立金 27,100円
駐車場 空有 駐車場料金 7,000 円
その他使用料 町内会費(月額) 400円
現況 空家 引渡 相談
取引態様 一般 国土法届出 ---
設備 温水洗浄便座、オープンキッチン、システムキッチン、3口以上コンロ、グリル、モニター付オートロック、エアコン2台以上、バイク置き場、室内洗濯機置場、モニター付インターホン、防犯カメラ、給湯、アルコーブ、都市ガス、二面バルコニー、駐輪場、ケーブルTV、BS端子、エレベーター
コメント \周辺環境充実!リフォーム済みのファミリー向けマンションです(^^)/

中央区新屋敷エリアに位置する「ヴェルビュ新屋敷東」のご紹介です♪

今回のお部屋は、2階・南東角部屋。
日当たりが良く、気持ちのいい光が差し込むお部屋です。
さらに嬉しい2面バルコニー付きで、風通しも良好◎
各居室の空気の入れ替えもしやすく、毎日快適に過ごせそうですね(^.^)/~~~

間取りは、ファミリーに嬉しい3LDK。
お部屋数がしっかり確保されているので、子ども部屋も無理なくつくれます。

リビング・ダイニングは約17.1帖のゆとりある空間。
家族が自然と集まり、くつろぎの時間を楽しめる広さです♪

さらに、2025年11月に内装リフォーム済み!気持ちよく新生活をスタートしていただけます。

<リフォーム内容>
・システムキッチン 新規交換
・システムバス 新規交換
・トイレ 新規交換
・フローリング張り替え
・壁紙貼り替え
・4LDK → 3LDKへ間取り変更

明るくおしゃれな内装に生まれ変わり、
ご家族での新しい暮らしが自然とイメージできるお部屋です♪

また、マンション全体の修繕・メンテナンスが定期的に行われている点も、長く安心して暮らせる嬉しいポイントですね♡

周辺環境もとても充実しています!
産業道路まで徒歩約3分、子飼橋通りまでも徒歩約3分とアクセス良好。
どちらの通りにも商業施設が多く、日常のお買い物にも便利です。

さらに徒歩約9分圏内には、ゆめマート大江をはじめ、スーパー・病院・カフェ・電気屋さんなどが揃った便利なエリアも。
子育て世帯にも暮らしやすい立地です(^^)

ご内覧も可能です。
中央区でマンションをお探しの方は、ぜひ一度ご覧ください。
皆さまからのお問い合わせをお待ちしております。


物件は最新の情報を記載するよう心がけておりますが、 来客されました際にあわせてご紹介を行っているため、すでに成約、商談が入ってしまっている場合があります。

気になる物件がございましたら、お早めにお問合せくださいますようお願いいたします。
※掲載内容と現況に相違がある場合は、現況優先とさせていただきます。

<周辺環境>
・ひかり幼児園まで365m  ・熊本学園大学付属敬愛幼稚園まで562m  ・熊本市立碩台幼稚園まで719m  ・黒髪幼愛園まで797m  ・熊本友の会幼児生活団まで870m  ・つばさ保育園まで46m  ・大江保育園まで312m  ・黒髪乳児保育園まで428m  ・天使の園保育園まで952m  ・熊本市立大江小学校まで900m  ・私立熊本学園大学付属中学校まで370m  ・熊本市立白川中学校まで700m  ・私立熊本学園大学付属高校まで456m  ・熊本大学 学生支援部 大江総合運動場まで296m  ・私立熊本学園大学まで577m  ・放送大学熊本学習センターまで750m  ・白川黒髪緑地まで339m  ・白川大江新屋敷緑地まで398m  ・渡鹿公園まで740m  ・有限会社熊本在宅サービスまで64m  ・山部歯科医院まで66m  ・居宅介護支援事業所望星まで115m  ・堤整形外科クリニックまで146m  ・大江歯科医院まで170m  ・訪問介護サービスミルキーウェイまで250m  ・坂梨歯科医院まで270m  ・浜坂歯科医院まで340m  ・新屋敷在宅クリニックまで383m  ・ローソン 熊本新屋敷三丁目店まで239m  ・ファミリーマート ゆうき大江店まで267m  ・セブンイレブン 熊本新屋敷3丁目店まで406m  ・セブンイレブン 熊本渡鹿5丁目店まで687m  ・ローソン 熊本子飼橋店まで689m  ・セブンイレブン 熊本南千反畑町店まで802m  ・セブンイレブン 熊本産業道路店まで830m  ・ゆめタウン大江まで570m  ・マルショク 子飼店まで690m  ・渡鹿マーケットまで889m
<実際に歩いた時の距離とは異なる場合がございますので、予めご了承ください。>
更新日 2026年05月18日 次回更新予定日 2026年06月01日
価格変更履歴

価格変更履歴については、
担当者にお問い合わせください。

ローンシミュレーション
自己資金 万円
※別途、諸費用が必要です。
ローン借入額 万円
内ボーナス時支払い 万円
※ボーナス返済月の加算額ではありません。
※お借入れ予定額の50%以下の金額をご入力ください。
金利
返済年数
  • 月々(毎月返済額)
  • 0
  • ボーナス(ボーナス時加算額)
  • 0

物件情報と現況に差異がある場合、現況を優先します。
掲載物件は売却済み、売却中止、価格変更となる場合がありますので、予めご了承ください。
仲介物件には所定の仲介手数料(消費税含む)が必要です。

株式会社たたら不動産
会社名 株式会社たたら不動産
所在地 〒862-0909
熊本市東区湖東3丁目4-16
交通 ----
TEL 096-243-7001
FAX 096-243-7002
ホームページHP https://www.tatara-fudousan.com/
メールアドレスE-MAIL info@tatara-fudousan.com
免許番号 国土交通大臣(2)第9594号
営業時間 10:00~18:00
定休日 水曜日
物件を探す ×
物件種別
マンション名
エリア
価格
延床面積
土地面積
専有面積
間取り
駅徒歩
築年数
こだわり条件
新規会員登録

無料会員登録で
非公開販売物件を
ご覧いただけます!

公開物件
211
公開物件+非公開物件
745

会員登録で
物件数が
大幅アップ!

現在の会員数3,962

  • 会員登録は無料!
  • 会員専用マイページを作成!
  • 希望条件に合う新着・価格変更物件をメール配信!
  • 非公開物件が閲覧可能!
  • 他社にはない特別限定物件のご紹介チャンスあり!