熊本市東区水源2丁目(第2)新築戸建 1号棟

熊本市 不動産熊本市東区水源2丁目(第2)新築戸建 1号棟

熊本市東区水源2丁目(第2)新築戸建 1号棟の売却査定・買取査定は株式会社たたら不動産

〔物件ID〕 0000014031
  • 新築戸建
  • 値下げ
2,988 万円
所在地 熊本県熊本市東区水源2丁目
交通 熊本市電健軍線「健軍交番前」駅 徒歩8分
バス 健軍遊園地前バス停下車 徒歩4分
延床面積 93.96m2 (28.42坪)
土地面積 111.66m2 (33.77坪)
築年月 2026年03月(令和8年03月)
間取り 4SLDK
  • おすすめ物件
  • 新耐震基準
  • 駐車場あり
  • 駐車場2台以上
  • 住宅性能評価書
熊本市東区水源2丁目(第2)新築戸建 1号棟の物件写真

1号棟 間取り図

  • 1号棟パース(現況と異なる場合あり)

  • 1号棟 間取り図

  • 区画図

  • 泉ヶ丘小学校

  • 東野中学校

  • マルショク健軍店

  • ファミリーマート動物園通り店

  • 肥後銀行健軍支店

熊本市東区水源2丁目(第2)新築戸建 1号棟のMAP・周辺環境
熊本市東区水源2丁目(第2)新築戸建 1号棟の物件概要
所在地 熊本県熊本市東区水源2丁目
交通 熊本市電健軍線「健軍交番前」駅 徒歩8分
バス 健軍遊園地前バス停下車 徒歩4分
価格 2,988万円
小学校区泉ケ丘小学校 (徒歩 8 分)中学校区東野中学校 (徒歩 12 分)
延床面積 93.96m2(28.42坪) 土地面積 111.66m2(33.77坪)
間取り 4SLDK 構造 木造
築年月 2026年03月(令和8年03月) 総戸数 ---
土地権利 所有権 地目 宅地
私道負担/私道面積 --- セットバック/距離/面積 ---
都市計画 市街 用途地域 一中
建ぺい率 60% 容積率 150%
建ぺい率(用途地域2) --- 容積率(用途地域2) ---
接道状況 一方
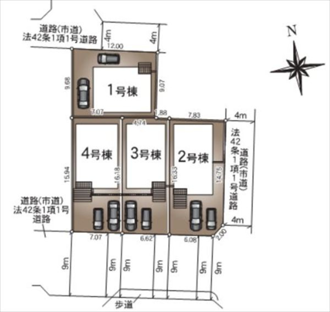
方向:北      種別:公道      幅員:4m      間口:--
駐車場 駐車場料金 ---
その他使用料 ---
現況 空家 引渡 相談
取引態様 仲介 国土法届出 ---
設備 浴室暖房、浴室乾燥機、オートバス、追焚機能、高温差湯式、シャワー付洗面化粧台、温水洗浄便座、トイレ2ヶ所、浴室に窓あり、カウンターキッチン、システムキッチン、浄水器、3口以上コンロ、グリル、全居室収納、ウォークインクローゼット、クローゼット、床下収納、モニター付インターホン、カードキー、ディンプルキー、ダブルロックドア、防犯カメラ、省エネ給湯器、上水道、下水道、都市ガス、電気、ルーフバルコニー、人感センサー付照明、ダウンライト、火災警報器(報知機)、複層ガラス
コメント \子育て世帯が安心して暮らせる住環境♪/

東区水源2丁目の落ち着いた住宅街に、全4棟の新築戸建てが誕生します。

今回ご紹介するのは【1号棟】!

対面式キッチンは、リビング全体を見渡せる設計。
小さなお子さまやご年配のご家族がいらっしゃるご家庭でも、様子を見守りながら安心してお料理ができます^^

水回りは行き来しやすい家事動線となっており、毎日の家事効率もぐんとアップしそうです♪

納戸はライフスタイルに合わせて使い方自由自在。
収納スペースとしてはもちろん、在宅ワーク用のお部屋や書斎、衣装部屋など、暮らしに合わせた使い方が広がります。

バルコニーは屋根付きのインナーバルコニータイプ。
急な雨でも洗濯物が濡れにくく、お天気を気にせずお出かけできるのも嬉しいポイント★

また、構造は耐久性に優れた「ベタ基礎」を採用。
建物全体を厚いコンクリートで覆うことで、湿気を防ぎ、シロアリの発生リスクも軽減します。
長く安心して住み続けられる住まいです( *´艸`)

周辺環境も魅力たっぷり。

徒歩圏内に幼稚園・小学校・中学校が揃い、お子さまの送り迎えや登下校も安心の距離感^^

コンビニやスーパーも近く、毎日のお買い物にも困りません。
さらに、ランチや外食が楽しめるお店も多数あり、お気に入りのお店探しも楽しみのひとつになりそう♪

江津湖や動植物園など、お子さまがのびのび遊べるレジャースポットも身近に揃っています。

暮らしやすさが詰まったこの町で、新しい生活を始めてみませんか?

まずはお気軽にお問い合わせください^^


※上記物件情報は1号棟のものです。(建築確認番号:第R07SHC122050号)
その他の号棟の情報につきましても弊社までお気軽にお問い合わせください。


<周辺環境>
泉ヶ丘小学校まで徒歩約8分、東野中学校まで徒歩約12分、マルショク健軍店まで徒歩約7分、ファミリーマート動物園通り店まで徒歩約3分、肥後銀行健軍支店まで徒歩約7分、その他、沢山の商業施設や医療機関、飲食店が多数充実しております。

物件は最新の情報を記載するよう心がけておりますが、 来客されました際にあわせてご紹介を行っているため、すでに成約、商談が入ってしまっている場合があります。

気になる物件がございましたら、お早めにお問合せくださいますようお願いいたします。
※掲載内容と現況に相違がある場合は、現況優先とさせていただきます。
更新日 2026年03月27日 次回更新予定日 2026年04月10日
価格変更履歴

価格変更履歴については、
担当者にお問い合わせください。

ローンシミュレーション
自己資金 万円
※別途、諸費用が必要です。
ローン借入額 万円
内ボーナス時支払い 万円
※ボーナス返済月の加算額ではありません。
※お借入れ予定額の50%以下の金額をご入力ください。
金利
返済年数
  • 月々(毎月返済額)
  • 0
  • ボーナス(ボーナス時加算額)
  • 0

物件情報と現況に差異がある場合、現況を優先します。
掲載物件は売却済み、売却中止、価格変更となる場合がありますので、予めご了承ください。
仲介物件には所定の仲介手数料(消費税含む)が必要です。

株式会社たたら不動産
会社名 株式会社たたら不動産
所在地 〒862-0909
熊本市東区湖東3丁目4-16
交通 ----
TEL 096-243-7001
FAX 096-243-7002
ホームページHP https://www.tatara-fudousan.com/
メールアドレスE-MAIL info@tatara-fudousan.com
免許番号 国土交通大臣(2)第9594号
営業時間 10:00~18:00
定休日 水曜日
物件を探す ×
物件種別
エリア
価格
延床面積
土地面積
専有面積
間取り
駅徒歩
築年数
こだわり条件
新規会員登録

無料会員登録で
非公開販売物件を
ご覧いただけます!

公開物件
212
公開物件+非公開物件
718

会員登録で
物件数が
大幅アップ!

現在の会員数3,908

  • 会員登録は無料!
  • 会員専用マイページを作成!
  • 希望条件に合う新着・価格変更物件をメール配信!
  • 非公開物件が閲覧可能!
  • 他社にはない特別限定物件のご紹介チャンスあり!