ロイヤルシャトー徳王

熊本市 不動産ロイヤルシャトー徳王

ロイヤルシャトー徳王の売却査定・買取査定は株式会社たたら不動産

〔物件ID〕 0000013743
  • 中古マンション
  • 新着
1,450 万円
所在地 熊本県熊本市北区徳王1丁目
交通 バス 清水台団地入口バス停下車 徒歩2分
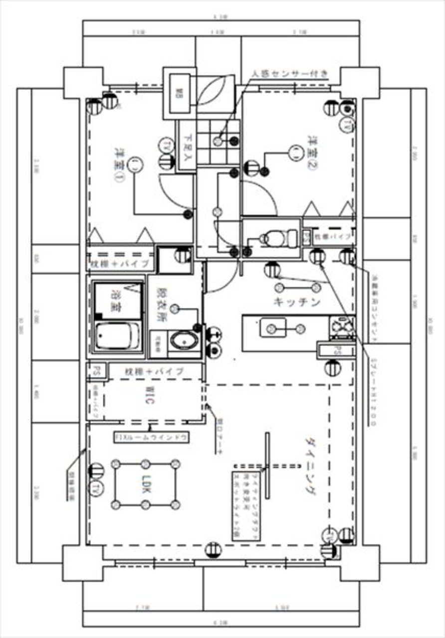
専有面積 67.05m2 (20.28坪)
間取り 3LDK
築年月 1992年03月(平成4年03月)
所在階/階数 4 階 / 10 階
  • おすすめ物件
  • 南向き
  • 新耐震基準
  • 駐車場空きあり
  • リノベーション・リフォーム済み
  • オートロック
  • 即入居可
ロイヤルシャトー徳王の物件写真

間取り図

  • 外観

  • 間取り図

  • 玄関

  • リビング

  • リビング

  • リビング

  • リビング

  • リビング

  • リビングWIC

  • キッチン

  • キッチン

  • 洋室

  • 洋室

  • 洗面室

  • 洗面室

  • 浴室

  • トイレ

  • バルコニー

  • 室内

  • 室内

  • 設備

  • 設備

  • 設備

  • 熊本城が望めます

  • オートロック

  • 駐車場

  • 西里小学校

  • 高平台小学校

  • 京陵中学校

  • 北部中学校

ロイヤルシャトー徳王のMAP・周辺環境
ロイヤルシャトー徳王の物件概要
所在地 熊本県熊本市北区徳王1丁目
交通 バス 清水台団地入口バス停下車 徒歩2分
価格 1,450万円
小学校区西里小学校 (距離 2140 m)中学校区京陵中学校 (距離 1290 m)
専有面積 67.05m2(20.28坪) 間取り 3LDK
バルコニー面積 9.27m2 バルコニー向き
その他面積 ---
構造 RC 所在階/階建 4階/10階
築年月 1992年03月(平成4年03月) 総戸数 90戸
土地権利 所有権 用途地域 準住
管理会社 大和ライフネクスト株式会社
管理形態 管理会社に全部委託 管理員 日勤
管理費 5,120円 修繕積立金 23,450円
駐車場 空有 駐車場料金 6,000 円
その他使用料 自治会費(月額) 200円
現況 空家 引渡 即時
取引態様 仲介 国土法届出 ---
設備 バス・トイレ別、都市ガス、上水道、下水道、バルコニー
コメント \熊本城を望む、フルリノベーション済みレジデンス/

徳王1丁目、高台に佇むマンション
「ロイヤルシャトー徳王」
このたび室内をフルリノベーションし、新たな住まいとして生まれ変わりました。

お部屋はゆとりある3LDK。

高台立地ならではの開放感と眺望の良さが魅力で、室内からは熊本城を望む景色が広がります。

時間帯によって表情を変える景観は、日常の中に特別なひとときをもたらしてくれます。

リノベーションにより、内装は一新。

清潔感のある空間に仕上がっており、新生活をすぐにスタートできる即入居可能なお部屋です。

窓辺に差し込む陽光と、心地よい風を感じながら過ごす時間は、何気ない日常を豊かに彩ります。

対面式キッチンも使い勝手が良いですよ☆彡

水回りをコンパクトにまとめた動線設計で、家事のしやすさにも配慮されています。

高台に位置するため、洪水リスクが低いとされている点も安心材料のひとつ。

小学校・中学校は緩衝校区選択可で、ライフスタイルに合わせた選択が可能です。

コンビニ・スーパーも徒歩圏内に揃い、日々のお買い物もスムーズ。

利便性と落ち着いた住環境を兼ね備えた立地です。

熊本城を日常に取り込む暮らし。

毎日が少し誇らしく、心に残る住まいを、ぜひ現地でご体感ください。

緩衝校区:小学校と中学校が緩衝地域となっておりますので高平台小学校(約550m)、北部中学校(約3500m)とお選びいただけます。


現地確認や資料請求はお気軽にお問い合わせください。
ご連絡お待ちしております。


物件は最新の情報を記載するよう心がけておりますが、 来客されました際にあわせてご紹介を行っているため、すでに成約、商談が入ってしまっている場合があります。

気になる物件がございましたら、お早めにお問合せくださいますようお願いいたします。
※掲載内容と現況に相違がある場合は、現況優先とさせていただきます。


<周辺環境>
・高平幼稚園まで914m  ・はけみや保育園まで741m  ・五丁保育園まで993m  ・熊本市立高平台小学校まで539m  ・熊本市立西里小学校まで1900m  ・熊本市立京陵中学校まで2700m  ・吉祥苑山室まで149m  ・河本内科小児科クリニックまで247m  ・デイサービスセンター徳王ろまん館まで318m  ・田ノ上歯科医院まで445m  ・熊本市 老人福祉センター 西里まで642m  ・小規模多機能型居宅介護事業所せせらぎまで659m  ・中村整形外科まで777m  ・城北胃腸科内科クリニックまで783m  ・有限会社在宅サービスかみふうせんまで790m  ・訪問看護ステーションかみふうせんまで790m  ・ローソン 熊本徳王二丁目店まで425m  ・ファミリーマート 熊本池田二丁目店まで712m  ・セブンイレブン 熊本清水バイパス店まで883m  ・ゆめマート清水まで858m  
<実際に歩いた時の距離とは異なる場合がございますので、予めご了承ください。>
更新日 2025年12月19日 次回更新予定日 2026年01月02日
価格変更履歴

価格変更履歴については、
担当者にお問い合わせください。

ローンシミュレーション
自己資金 万円
※別途、諸費用が必要です。
ローン借入額 万円
内ボーナス時支払い 万円
※ボーナス返済月の加算額ではありません。
※お借入れ予定額の50%以下の金額をご入力ください。
金利
返済年数
  • 月々(毎月返済額)
  • 0
  • ボーナス(ボーナス時加算額)
  • 0

物件情報と現況に差異がある場合、現況を優先します。
掲載物件は売却済み、売却中止、価格変更となる場合がありますので、予めご了承ください。
仲介物件には所定の仲介手数料(消費税含む)が必要です。

株式会社たたら不動産
会社名 株式会社たたら不動産
所在地 〒862-0909
熊本市東区湖東3丁目4-16
交通 ----
TEL 096-243-7001
FAX 096-243-7002
ホームページHP https://www.tatara-fudousan.com/
メールアドレスE-MAIL info@tatara-fudousan.com
免許番号 国土交通大臣(2)第9594号
営業時間 10:00~18:00
定休日 水曜日
物件を探す ×
物件種別
マンション名
エリア
価格
延床面積
土地面積
専有面積
間取り
駅徒歩
築年数
こだわり条件
新規会員登録

無料会員登録で
非公開販売物件を
ご覧いただけます!

公開物件
225
公開物件+非公開物件
715

会員登録で
物件数が
大幅アップ!

現在の会員数3,794

  • 会員登録は無料!
  • 会員専用マイページを作成!
  • 希望条件に合う新着・価格変更物件をメール配信!
  • 非公開物件が閲覧可能!
  • 他社にはない特別限定物件のご紹介チャンスあり!